ID CP1951114

SOLD / VANDUT Apartament cu 1 camere de vânzare în zona Nord

Această proprietate nu mai este activă,
te invităm să vizualizezi proprietăți similare

ID CP1951114

42,900 €

Apartament cu 1 camere de vânzare
Nord, Mamaia
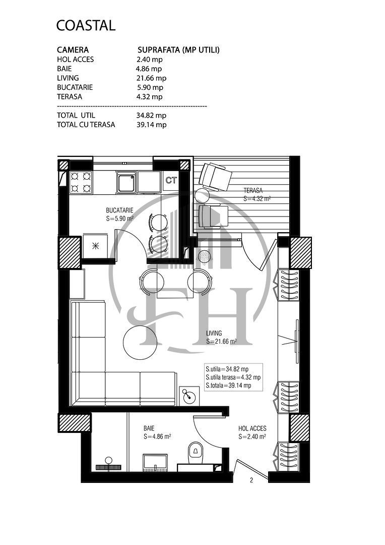
34.82 mp
  • Tip apartament
    Apartament
  • Număr camere
    1
  • Suprafață utilă
    34.82 mp
  • Suprafață construită
    45.8 mp
  • Disponibilitate
    Imediat

Facilități

Necesare:

Site-ul nu poate funcționa corect fără aceste cookie-uri. Vezi cookie-urile

Statistică:

Strângem statistici anonime despre voi, vizitatorii unici, pentru a vă îmbunătăți experiența dumneavoastră. Vezi cookie-urile

Marketing:

Pentru a ne promova mai eficient serviciile noastre, folosim cookies pentru a vă identifica și a vă oferi proprietăți și servicii personalizate. Vezi cookie-urile

Acest site folosește cookies, află detalii. Alege ce tipuri de cookies dorești să permitem: